Maristak Durango
FP Zornotza
UNI Eibar Ermua
Ibiliaz Ezagutu Amorebieta

El PSE de Abadiño propone la construcción de Viviendas de Protección Social en Zelaieta

El portavoz del PSE-EE de Abadiño, Patxo Campo, propuso en el último pleno la construcción de viviendas de Protección Social (VPS) en el barrio Zelaieta. La iniciativa busca facilitar el acceso a la vivienda a precios más asequibles.

Tal y como Campo ha explicado, las VPS están pensadas “para personas o familias con ingresos limitados que no pueden acceder al mercado libre”.

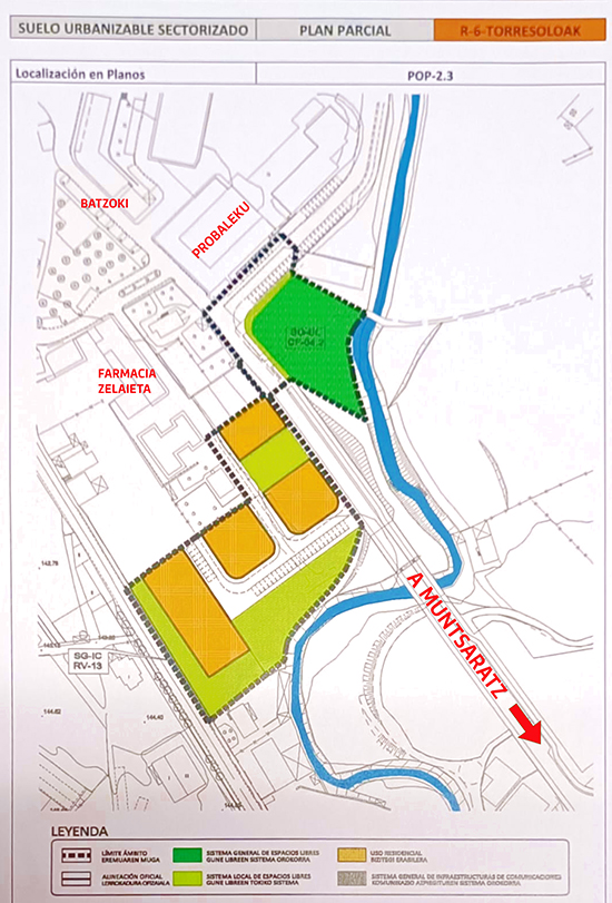
La propuesta está orientada a la zona UR6, que se empieza a trabajar para su ejecución. Ofertar estas viviendas protegidas permitiría cumplir con el Plan General de Ordenación Urbana, que reserva “un 55% de VPS” en esa zona.

La iniciativa del PSE-EE de Abadiño está orientada a combatir el problema de la escasez de vivienda asequible en Abadiño, “especialmente donde el precio de los inmuebles ha aumentado considerablemente”. La construcción de más VPS “sería una opción más viable y económica para quienes tienen dificultades para acceder a viviendas en el sector privado”.

Con esta propuesta, el PSE-EE de Abadiño busca garantizar el derecho a una vivienda digna, “uno los puntos claves de nuestra agenda social”, concluye Campo.

1 Estrella2 Estrellas3 Estrellas4 Estrellas5 Estrellas (Sin valoración)
Cargando...

durangon.com webguneak ez du uzten gorrotoa, mespretxua edo diskriminazioa sustatzen duten edukiak argitaratzen, jaiotza, arraza, sexu, erlijio, nazionalitate, iritzi edo bestelako inguruabar pertsonal edo sozialengatik.

Izen propioei erreferentzia egiten dieten eta ohorerako eta intimitaterako eskubidearen aurkako iruzkinak ezabatuko dira. Irain eta iruzkin guztiak ere zuzenean ezabatuko ditugu, baldin eta iraingarriak, kalumniatzaileak edo indarreko legeria hausten badute.

Gehiago irakurri


durangon.com no permite la publicación de contenidos que de forma manifiesta fomenten el odio, el desprecio o la discriminación por motivos de nacimiento, raza, sexo, religión, nacionalidad, opinión o cualquier otra circunstancia personal o social.

Se eliminarán todos los comentarios que hagan referencia a nombres propios y atenten contra el derecho al honor y a la intimidad. También borraremos directamente todos los insultos y los comentarios que puedan resultar injuriosos, calumniadores o que infrinjan la legislación vigente.

Leer más

Deja una Respuesta

Tu dirección de correo electrónico no será publicada. Los campos obligatorios están marcados con *

*

Artículos Relacionados